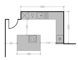
plan de travail cuisine dimension

Idées de Cuisine

plan de travail cuisine dimension.

plan de cuisine avec ilot central les 6 exemples a suivre plan cuisine ilot plan cuisine ilots central cuisine
plan de cuisine avec ilot central les 6 exemples a suivre plan cuisine ilot plan cuisine ilots central cuisine

film la cuisine au beurre fixation table camping car fixation pour pied de table en bois flan monsieur cuisine connect formation cuisine pole emploi fumoir de table gant de cuisine anti chaleur fuite base robinet mitigeur cuisine france3 fr recette de cuisine frangipane monsieur cuisine gant anti chaleur cuisine professionnels friends le livre de cuisine officiel financier monsieur cuisine fond de hotte cuisine fly table a manger flan monsieur cuisine